ajp logo

Location maison Biscarrosse : 1 500 € - AJP Immobilier Biscarrosse

<<< Retour à la liste des annonces
94 m²
535 m²
4
3
1
94 m²
535 m²
4
3
1

Ref6809 présentée par

AJP Immobilier Biscarrosse

Description de ce bien

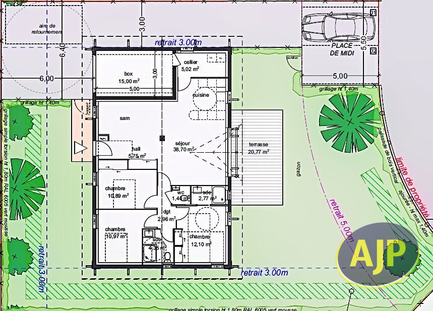
Biscarrosse bourg, proche centre ville, maison neuve de plain pied de type 4 comprenant une entrée, un beau salon séjour avec cuisine aménagée et équipée (hotte, plaque induction et four) , 3 chambres avec placards, une salle de bains avec meuble double vasques, un wc, un cellier, un garage. Le tout sur un terrain de 535 m2 clôturé. Disponible au 15 juin 2026Loyer TTC: 1500,00 eurosDépôt de garantie : 1500.00 eurosHonoraires à la charge du locataire : 846 euros TTC dont 282 euros pour l'état des lieuxDPE aux normes RE 2020. Bien en cours de constructionLes informations sur les risques auxquels ce bien est exposé sont disponibles sur le site Géorisques : http://www.georisques.gouv.fr

Les informations sur les risques auxquels ce bien est exposé sont disponibles sur le site Géorisques : www.georisques.gouv.fr

Performances énergétiques

NC
KWh/m²/an
NC
kg CO²/m².an
NC
CO²/m².an
Montant estimé des dépenses d’énergie : Entre NC € et NC € par an

Situation et environnement

Chargement de la carte...
Afficher le numéro
Contact pour info et visite
Suivez-nous sur la toile !
facebook linkedin google instagram youtube
AJP Immobilier