ajp logo

Vente appartement La Teste De Buch : 211 600 € - AJP ACTEA La Hume

<<< Retour à la liste des annonces
72 m²
0 m²
4
3
1
72 m²
0 m²
4
3
1

Ref489 présentée par

AJP ACTEA La Hume

211 600 € HAI
Honoraires : 5.8 % TTC à la charge de l'acquéreur inclus Prix du bien hors honoraires : 200 000 €
Mail Print Facebook LinkedIn Twitter

Description de ce bien

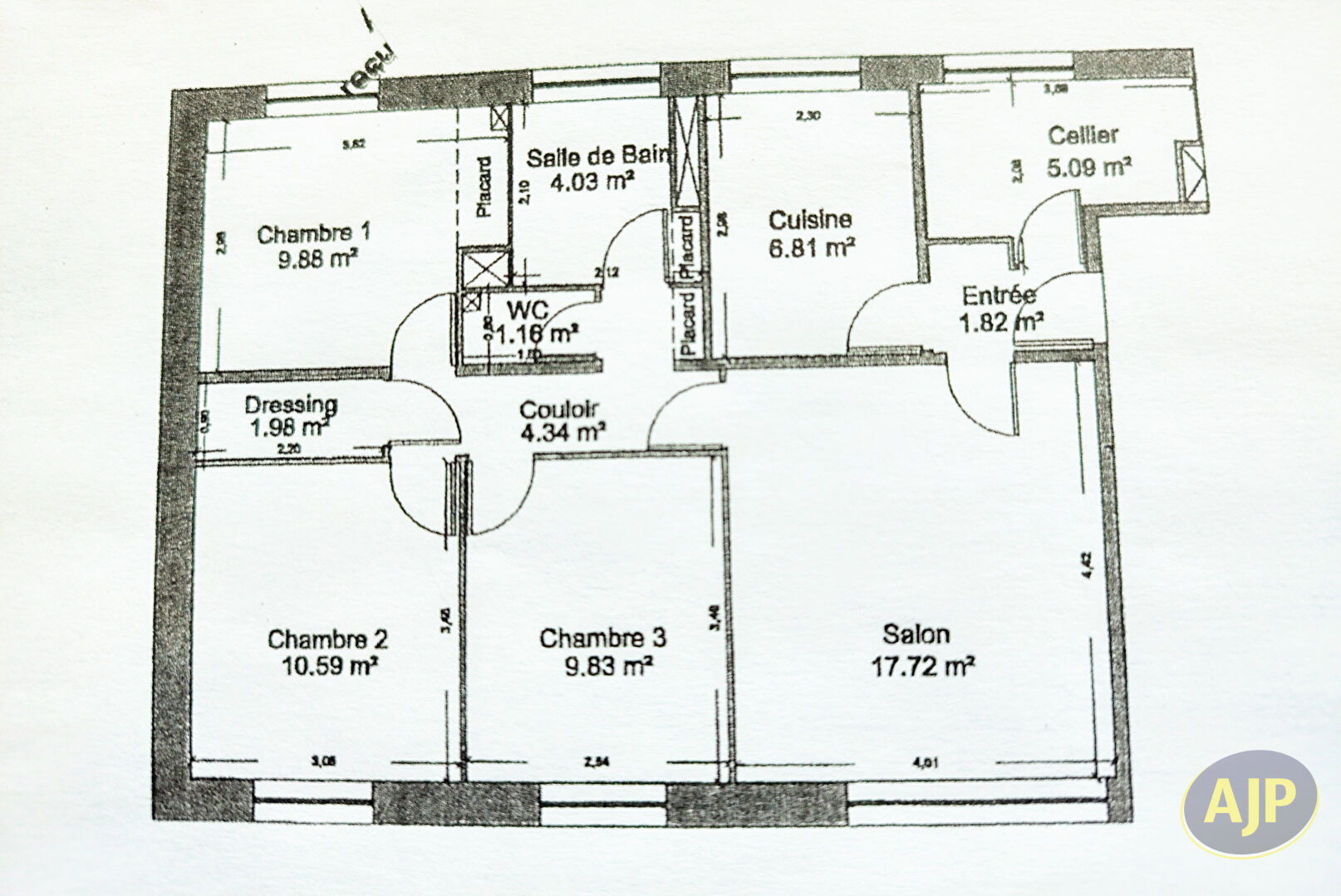
A La Teste-de-Buch, cet appartement de 72 m² au 2e étage d'une résidence bien suivie est idéal pour un investisseur ou un premier achat. Lumineux, avec un séjour orienté plein Sud, il comprend une entrée accueillante, une buanderie, une cuisine séparée aménagée, trois chambres, une salle de bain et des WC indépendants.A décorer selon vos envies, il bénéficie d'un dressing pratique et de nombreux rangements. Un véritable cocon à personnaliser, dans un quartier calme et recherché. Une belle opportunité pour se lancer ou investir dans un secteur attractif !Pour votre confort, une place de parking privative complète le bien.La copropriété de 50 lots (charges annuelles : 1200 euros, chauffage compris) bénéficie d'un emplacement privilégié, à proximité immédiate des commerces et des écoles.Une opportunité idéale pour une première acquisition sur le Bassin d'Arcachon. (5.80 % honoraires TTC à la charge de l'acquéreur.)Copropriété de 50 lots (Pas de procédure en cours). Charges annuelles : 1200 euros. Stéphane CHOLLET (EI) Agent Commercial - Numéro RSAC : 844167544 - BORDEAUX.

Les informations sur les risques auxquels ce bien est exposé sont disponibles sur le site Géorisques : www.georisques.gouv.fr

Performances énergétiques

185
KWh/m²/an
25
kg CO²/m².an
25
CO²/m².an
Montant estimé des dépenses d’énergie : Entre 1140 € et 1590 € par an

Mensualité pour ce bien

Situation et environnement

Chargement de la carte...
Consulter notre barème d'honoraires
Visiter la page de l'agence
Afficher le numéro
Contact pour info et visite
Suivez-nous sur la toile !
facebook linkedin google instagram youtube
AJP Immobilier