ajp logo

Location appartement Nantes : 806 € - AJP Immobilier Nantes Rond-Point de Rennes

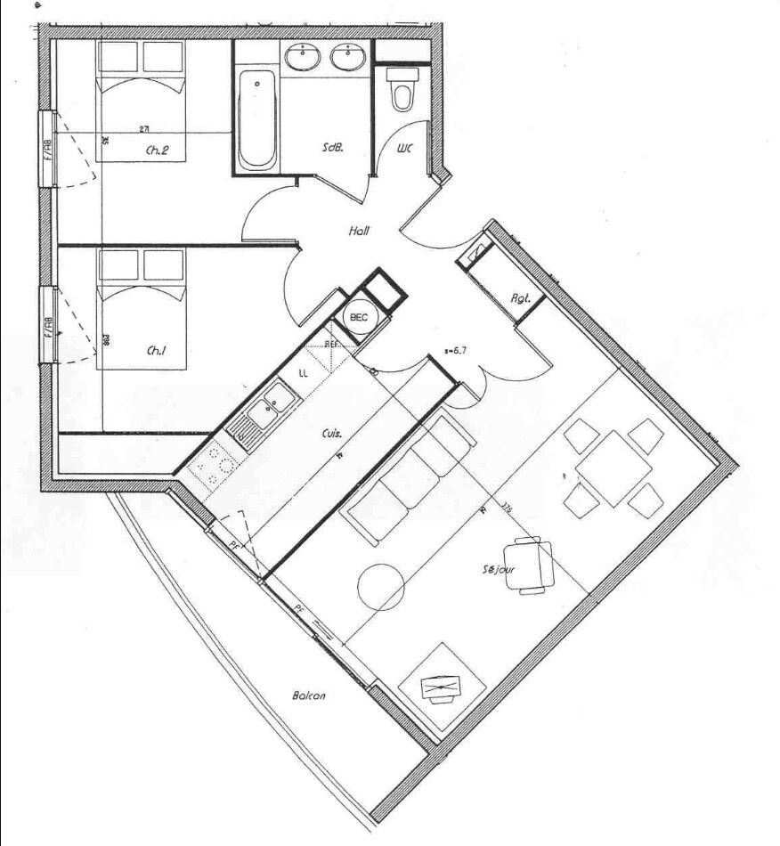
<<< Retour à la liste des annonces
0 m²
0 m²
0
0
0
0 m²
0 m²
0
0
0

RefNS670AR présentée par

AJP Immobilier Nantes Rond-Point de Rennes

Description de ce bien

Les informations sur les risques auxquels ce bien est exposé sont disponibles sur le site Géorisques : www.georisques.gouv.fr

Performances énergétiques

NC
KWh/m²/an
NC
kg CO²/m².an
NC
CO²/m².an
Montant estimé des dépenses d’énergie : Entre NC € et NC € par an

Situation et environnement

Chargement de la carte...
Afficher le numéro
Contact pour info et visite
Suivez-nous sur la toile !
facebook linkedin google instagram youtube
AJP Immobilier