ajp logo

Vente maison Libourne : 299 500 € - AJP Immobilier Libourne

<<< Retour à la liste des annonces
100 m²
528 m²
8
0
0
100 m²
528 m²
8
0
0

RefSB1308 présentée par

AJP Immobilier Libourne

299 500 € HAI
Honoraires : 4.78 % TTC à la charge de l'acquéreur inclus Prix du bien hors honoraires : 285 850 €
Mail Print Facebook LinkedIn Twitter

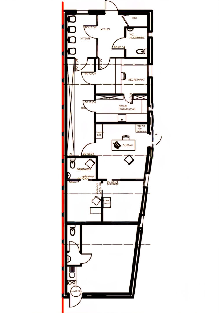
Description de ce bien

Dans le prolongement d'un axe commercial de premier ordre, venez découvrir ce magnifique local entièrement rénové pour investissement ou toutes activités professionnelles.Sur une parcelle de 528 m² avec parking privé et accès facile.Situé sur un axe dynamique cet immeuble propose un bureau composé de deux pièces d'environ 20 m² et d'un local d'environ 80 m² composé de 8 pièces avec salle grande d'attente et sanitaires.L'ensemble adapté aux normes PMR handicapés.Rapport annuel possible 22.000 euros (4.78 % honoraires TTC à la charge de l'acquéreur.)

Les informations sur les risques auxquels ce bien est exposé sont disponibles sur le site Géorisques : www.georisques.gouv.fr

Performances énergétiques

NC
KWh/m²/an
NC
kg CO²/m².an
NC
CO²/m².an
Montant estimé des dépenses d’énergie : Entre NC € et NC € par an

Mensualité pour ce bien

Situation et environnement

Chargement de la carte...
Afficher le numéro
Contact pour info et visite
Suivez-nous sur la toile !
facebook linkedin google instagram youtube
AJP Immobilier