ajp logo

Vente appartement Gujan Mestras : 175 000 € - AJP Immobilier Cestas

<<< Retour à la liste des annonces
42 m²
0 m²
2
1
1
42 m²
0 m²
2
1
1

RefCL-T2GUJAN présentée par

AJP Immobilier Cestas

175 000 € HAI
Honoraires : 6.71 % TTC à la charge de l'acquéreur inclus Prix du bien hors honoraires : 164 000 €
Mail Print Facebook LinkedIn Twitter

Description de ce bien

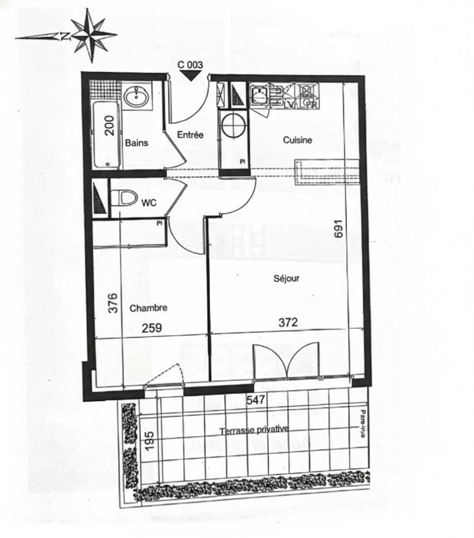
Idéalement situé très proche des commerces, dans un secteur verdoyant et calme de Gujan-Mestras, ce charmant T2 de 42 m² (41,90m² Loi carrez). Situé en rez-de-chaussée d'une résidence sécurisée, cet appartement "prêt à vivre" s'ouvre sur une spacieuse terrasse de 10,50 m² exposée Ouest, véritable extension de la pièce de vie.L'intérieur, fonctionnel et lumineux, se compose d'une entrée avec placards, d'un séjour avec cuisine ouverte, d'une chambre avec rangements, d'une salle de bain et d'un WC indépendant. Atout rare sur le secteur : deux places de parking couvertes et sécurisées complètent ce bien. Libre de toute occupation, ce logement constitue une opportunité idéale pour un premier achat, un pied-à-terre sur le Bassin ou un investissement locatif performant. A découvrir rapidement ! (6.71 % honoraires TTC à la charge de l'acquéreur.)Copropriété de 462 lots - dont 172 lots habitation. (Pas de procédure en cours).Charges annuelles : 1100 euros.

Les informations sur les risques auxquels ce bien est exposé sont disponibles sur le site Géorisques : www.georisques.gouv.fr

Performances énergétiques

108
KWh/m²/an
3
kg CO²/m².an
3
CO²/m².an
Montant estimé des dépenses d’énergie : Entre 390 € et 570 € par an

Mensualité pour ce bien

Situation et environnement

Chargement de la carte...
Afficher le numéro
Contact pour info et visite
Suivez-nous sur la toile !
facebook linkedin google instagram youtube
AJP Immobilier